Wohnen in der Gipsstraße


Eines der ersten Projekte an der HafencityUniversität, dem ich mich kurz nach Beginn meines Architekturstudiums widmete, war die Planung eines Mehrfamilienhauses in der Berliner Gipsstraße - einer durch den fortlaufenden Prozeß der Gentrifizierung in einem starken Umbruch begriffenen Straße nahe der Museumsinsel und der Sophienkirche.
Entsprechend der umgebenden Bebauung war seitens des betreuenden Professors Wouter Suselbeek die Vorgabe, sich bei der Gestaltung des Hauses auf einer zugewiesenen Parzelle in das Stadtbild einzufügen.
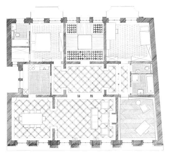
Einen wesentlichen Anteil an der Gesamtarbeit nahm dann auch die Gestaltung der Fassade mit Stuckbändern und Lisenen in Anspruch - sowohl die sehr konservative Entwurfsgestaltung, als auch die ausschließliche Verwendung von Bleistift und Papier entsprachen den gestellten Arbeitsvorgaben. Die nebenstehend dargestellten Zeichnungen geben einen kleinen Überblick einerseits über eine dem Vorbild des frühen zwanzigsten Jahrhunderts folgende Grundrißgestaltung, als auch über das stets präsente Bedürfnis, zu einer harmonischen, symmetrischen Gestalt des Gesamtgebäudes zu gelangen. Ersteres drückt sich vor allem in der enfiladenhaften Reihung von Wohn- und Speisezimmer hinter der Hauptfassade aus - hier findet neben der Wohn- nutzung auch die Repräsentation der Wohnungseigentümer statt.
Die rückwärtigen Räume sind neben dem Treppenhaus dem Privaten vorbehalten - es handelt sich um die Schlafzimmer. Zwischen diesen Bereichen sind die über einen kleinen Lichthof belüftete Küche, ein repräsentatives Entree, das sich zum Salon durch Glastüren öffnet und schließlich ein geräumiges Bad nebst einem Gäste-WC angeordnet.
Gleichfalls hinter der Hauptfassade befindet sich das Arbeits- und Bibliothekszimmer, das zwar ebenfalls repräsentativ erscheint, jedoch nicht den gleichen öffentlichen Charakter hat wie die Wohnenfilade. Insgesamt handelte es sich bei diesen sehr frühen Entwurf um ein ausgesprochen interessantes Projekt, welches neben dem Entwurf an sich auf eine sehr intensive Weise das Handwerkliche an der Architektur vermittelte.
Es entstand eine Wertschätzung vor dieser sehr klassischen Herangehensweise, die mich auch in späteren Entwürfen noch prägen sollte.