Kirche in Norderstedt

Gemeinsam mit meinem Kommilitonen Wojtek Szmal unternahm ich im Wintersemester 2009-2010 einen ersten Ausflug in die Moderne.
Im Rahmen der Landesgartenschau Schleswig-Holstein sollte für die evangelische Gemeinde Norderstedts auf dem Ausstellungsgelände - einem Gebiet rund um einen ehemaligen Baggersee im Osten des Ortes - eine Kapelle errichtet werden. Vorgabe war, daß es sich um einen Bau aus Glas und Stahl handeln sollte.
Diese Vorgabe im Rücken - sie entspricht üblicherweise nicht meiner her konservativen Auffassung von Architektur - machten sich mein Kommilitone und ich an die Entwurfsarbeit, die bisweilen zu einem freundschaftlichen "Kampf der Kulturen" wurde. Die intensive Beschäftigung mit einer mir bislang gänzlich fremden Welt entbehrte letztlich nicht einiger Faszination - insbesondere, weil ich neben der eigentlichen Entwurfsplanung weiteres Engagement im Bereich der Visualisierung einbringen konnte. Das Bauwerk ist, obschon in seiner Formensprache ganz der Moderne verhaftet, nicht frei von Symbolik, die allerdings, anders als dies bei Bauten etwa des Mittelalters und der frühen Neuzeit der Fall ist, subtil angedeutet und bisweilen versteckt ist.
So stellt die seeseitige Ansicht des Sakralbaus eine abstrahierte Form der Lutherrose dar, einem Wappenbild, das Martin Luther seit seinem Aufenthalt auf der Wartburg als persönliches Wappen führte. Es handelt sich hierbei um eine Rose, in deren Mitte sich, eingefaßt von einem herzförmigen Kernschild, ein Kreuz befindet. Dieses Motiv wurde hier in eine moderne Formensprache übersetzt: die Blütenblätter werden symbolisiert durch Betonplatten, die die Kirche, außer auf der Seeseite, gänzlich umschließen, ohne einander dabei direkt zu berühren. Der Kernschild wird durch das der aus diesem Kokon herausragende Kirchenschiff symbolisiert, einem Pfosten-Riegel-Bau aus Stahl und Glas, der aus dem Betonkokon in Richtung des Sees hinausragt. Die Frontseite dieses Bauteils, durch die Pfosten-Riegel-Konstruktion in ein gleichmäßiges Raster geteilt, ist zwischen den zwei Glasschichten mit einem Vorhang aus dünnen, vergoldeten Goldlamellen verhängt. Der Großteil der Fläche ist mit einem zweischichtigen Vorhang versehen, deren Lamellen sich in der Draufsicht rechtwinklig überschneiden. Einzig die mittleren Felder sind einschichtig, so daß sich bei der Draufsicht die Konturen des die Lutherrose zierenden Kreuzes abzeichnen.
Ein weiteres Merkmal des Bauwerkes ist sein schichtweiser Aufbau - nach der äußersten Schicht, die durch die Betonschalen dargestellt wird, folgt die von ihr etwa einen Meter entfernte Pfosten-Riegel-Konstruktion und schließlich, innerhalb dieses als ein "Haus im Hause" der frei eingestellte Emporenbau. Dieser - seinerseits ein reiner Betonbau - ist in seinen oberen zwei Dritteln zum Kirchenschiff hin geöffnet und nimmt einerseits die Orgel auf, bietet aber auch reichlich Raum für die Aufstellung eines Chores und ggf. eines kleinen Orchesters. Der Wendepodest der Treppe eignet sich daneben sehr für die stimmungsvolle Aufstellung von Blechbläsern, die die sonstigen Musiker eindrucksvoll unterstützen.
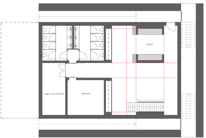
Unter der Empore befinden sich beiderseits eines zum Kirchenschiff führenden Durchganges kleine Seitenräume, die der Unterbringung der Gesangsbücher und evtl, eines Schriftenstandes dienen. Beiderseits dieser befinden sich die Treppen sowohl zur Empore, als auch zum Kellergeschoß, welches eine Teeküche, die Sakristei und Sanitärräume beherbergt. Schließlich befindet sich zwischen der Empore und der Glasfront der Eingangsseite ein schmales Vestibül, das als Windfang und optische Trennung von außen und innen dient.
Der Zugang erfolgt, letztlich auch durch die Lage des Gebäudes zu den Erschließungswegen, nicht axial, sondern seitlich. Verläßt der Betrachter die Kirche durch den Haupteingang, befindet er sich in dem schmalen Zwischenraum zwischen der Glaswand und einer Betonschale, zwischen denen sich zu beiden Seiten des Portals Treppen befinden, die auf das Niveau der Umgebung hinabführen.
Zwischen den seitlichen Schalen und dem Glasbau befinden sich jeweils Rampen, um auch Rollstuhlfahrern den Zugang zur Kirche, bzw. zu deren Untergeschoß zu ermöglichen.