Palais St. Johannis


Bauen in der Gegenwart muß nicht zwingend nach den Grundsätzen der Bauhausmoderne erfolgen - letztlich spricht nichts dagegen, sich beim Bau großzügiger Wohneinheiten an dem zu orientieren, was unsere Altvorderen hervorbrachten. Der universitäre Diskurs des nebenstehenden Entwurfs wurde erwartungsgemäß ein ausgesprochen heftiger, der sich über insgesamt zwei Semester hinzog: im ersten Semester im Rahmen des eigentlichen Entwurfs, im nachfolgenden im Rahmen des Bereichs der Baukonstruktion, der Bauökonomie, des Baurechtes und nicht zuletzt der Architekturgeschichte und -theorie. Stets unter der Fragestellung "darf man denn sowas?". Man darf - dies zumindest war die ganz überwiegende Meinung der Studenten, der "normalen Menschen". Darf man nicht - sagten nicht wenige Professoren und hinzugezogene Architekten. Viele mit den diversen Professoren und Dozenten durchdiskutierte Nächte werden neben den hier dargestellten Bildern in bleibender Erinnerung bleiben. Letztlich war das Argument eines Baurechtlers, der auch in ökonomischen Dingen wohl beschlagen war, das ausschlaggebende: Es verkauft sich gut - egal, was der universitäre Elfenbeinturm hiergegen sagt. Der Umstand, daß die Mehrheit der kritisierenden Prüfer selbst in Altbauwohnungen der gehobenen Kategorie wohnt, tat letztlich ein Übriges, um zu einer alles in allem sehr erfreulichen Bewertung zu gelangen.
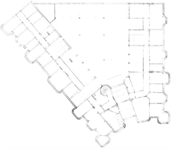
Der Entwurf als solcher entstand unter der Aufgabenstellung, auf einem unregelmäßigen Grundstück zwischen dem Turmweg und der Mollerstraße in Hamburg-Harvestehude ein Mehrfamilienhaus zu planen, welches den Beginn einer möglichen Bebauung der momentan noch an dieser Stelle befindlichen universitären Sportanlagen darstellen soll.
Beim Baugrundstück handelt es sich um einen unregelmäßiges Trapez, welches in prominenter Lage direkt gegenüber der bekannten St. Johanniskirche auf halber Strecke zwischen dem Mittelweg und der Rothenbaumchaussee liegt.
Gegenwärtig ist das eigentliche Baugrundstück als wenig ansehnlicher Parkplatz genutzt und trägt wenig zu einer ansehnlichen Gestaltung des Kirchenumfeldes bei. Diesem Umstand sollte durch die repräsentative Gestaltung des Gebäudes Abhilfe geleistet werden.
Was lag an dieser Stelle näher, als sich an der Gestaltung der Wohnhäuser im näheren Umfeld zu orientieren? Die Rothenbaumchaussee wie auch der Mittelweg prunken mit ihrer weitgehend erhaltenen Gründerzeit- und Jugendstilbebauung und tragen hiermit dazu bei, daß sie zu den begehrtesten Wohnadressen Hamburgs gehören.
Eine Anpassung an die Formensprache dieser Häuser, aber auch - sofern sich dies mit den modernen Anforderungen in Deckung bringen ließ - die innere Organisation dieser Häuser, dienten als Vorlage für diesen Entwurf, der gänzlich an der spezifisch Hamburgischen Spielart des Jugendstils orientiert ist.
Über einem Erdgeschoß und einem darüberliegenden Mezzanin, die beide für eine geschäftliche Vermietung geplant sind, folgen drei Regelgeschosse mit großzügigen Wohnungen, hierüber ein ausbaubares Dachgeschoß.
Im Kellergeschoß befinden sich neben einer unter dem Innenhof gelegenen Tiefgarage die Küche und Sanitärräume eines Restaurants und Lagerräume für die vermieteten Geschäfte. Unter ihnen befinden sich neben dem genannten Restaurant, welches sich durch eine Empore im Bereich des Mezzanins auszeichnet, Kleidungs- und Lebensmittelgeschäfte.
Daneben bieten sich die zur südlichen Seite hin gelegenen Mollerstraße Geschäftsräume für die Vermietung an Arztpraxen und Büros an. Durch die anderthalb Ebenen lassen sich hier besonders reizvolle Raumlösungen denken.
Die in den oberen Geschossen gelegenen Wohnungen zeichnen sich allesamt durch großzügig geschnittene Grundrisse aus, die den Charme vergangener Zeiten mit den Gewohnheiten des gegenwärtigen Wohnens verbinden. So wurde stets eine weitestmögliche Trennung von Privaträumen und solchen, die auch der Repräsentation dienen, angestrebt. Die Repräsentationsräume - Wohnzimmer/
Salon, Speisezimmer und ggf. die Bibliothek befinden sich hinter den Fenstern der Straßenseite, ganz so, wie dies bei den historischen Vorbildern der Fall gewesen ist.
Die Privaträume hingegen, zumindest die Schlafzimmer und teilweise auch die Kinderzimmer sind dem Innenhof mit seinem Gartenanlagen zugewandt. Insbesondere im Fall der Schlafzimmer ist dies hinsichtlich der Belichtung vergleichsweise unproblematisch - der Tageslichtbedarf in Schlafzimmern ist eher gering. In den Zwickeln an der Westseite des Innenhofs, der Stelle wo es am ehesten zu einem Lichtmangel hätte kommen können, konnte durch Einfügung von Runderkern Fenster geschaffen werden, die das bis hierhin vordringende Licht bestmöglich einfangen.
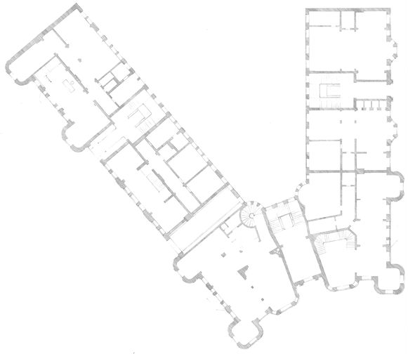
Bis hierhin folgen die Wohnungsgrundrisse weitgehend den historischen Vorbildern. Die hohen, mit Stuck verzierten Decken tun hierzu ebenso ein Übriges wie die langen Flure, die der Wohnung ihrerseits ein Gefühl von Weite geben. Eher der Moderne zugehörig sind die Wohnküchen und Kinder-/Gästezimmer mit angeschlossenen Bädern - ein Komforterfordernis der Neuzeit, das so vor hundert Jahren noch nicht bestand.
Die geräumigen Wohnküchen - zumeist versehen mit einem Speisetresen folgen ebenfalls spezifisch modernen Gewohnheiten - sie lassen sich jedoch einfach mit klassischer Gestaltungsweise in ein harmonisches Gesamtkonzept integrieren.
Ganz anders als das Jugendstilgewand des Hauses im Inneren und Äußeren wurde durchgehend auf eine Verwendung zeitgenössischer Baustoffe unter diesem geachtet: Stahlbeton, wohlverborgene Dämmschichten und Isolierglas der neuesten Generation machen das Wohnen im Palais St. Johannis zu einer lebenslangen Erfahrung, die die Vorzüge des Altbaus mit denen der Moderne symbiotisch miteinander verbindet.