Schloß Lausnitz

Ein Projekt, in dem wahrhaft Herzblut steckte und nach wie vor steckt, ist das nebenstehende. Eine alte Freundin von mir gehört einer Familie an, deren Schloß im thüringischen Lausnitz bei Neustadt an der Orla im Rahmen der Bodenreform enteignet und verwüstet wurde. Bis zu Wende von 1989 befand sich in den zunehmend verfallenden Gebäuden eine LPG, deren Mitarbeiter in den Räumlichkeiten des einstigen Schlosses und der Wirtschaftsgebäude untergebracht wohnten.
Das Schloß samt der anschließenden Bauten befindet sich gegenwärtig in einem ruinösen Zustand, was nicht zuletzt daran liegt, daß das Gebäude seit dem Rückkauf durch die Familie der einstigen Eigentümer brach liegt und das Dach undicht ist.
Auf Bitten besagter Freundin entwickelten mein Kommilitone Sebastian Bullinger und ich im Rahmen eines freien Entwurfes Konzepte, das Ensemble mit neuem Leben zu füllen und es einer angemessenen Nutzung zuzuführen, ehe es gänzlich zur Ruine zerfällt.
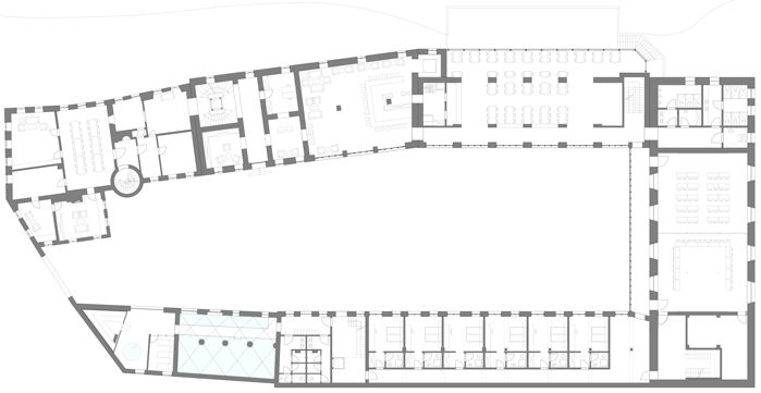
Die Eigentümerin und deren damaliger Partner, beide Rechtsanwälte in Stuttgart, sind seit langem im Bereich der Fortbildung für Juristen engagiert und erwägen seit geraumer Zeit, eine Reihe von Seminaren zu verschiedenen juristischen Themen zu organisieren. Aus diesem Umstand erwuchs der Gedanke, aus dem einst als landwirtschaftliches Gut genutzten Komplex ein Seminarhotel zu machen, in dem die Lehrgangsteilnehmer nicht auf die gewohnte Bequemlichkeit verzichten müssen und nach einem anstrengenden Tag die Seele entweder im ausgedehnten Spa-Bereich, dem Weinkeller oder in einem der gediegenen Räume des restaurierten Schlosses zu erholen.
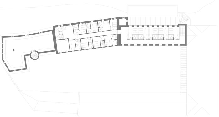
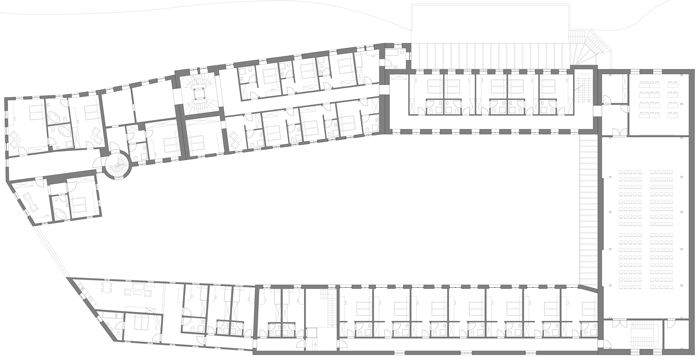
Neben einer Anzahl von Hotelzimmern und den für den Hotelbetrieb notwendigen Räumlichkeiten entstanden (leider vorerst nur auf dem Papier) einige sehr große Seminarräume sowie ein großer Vortragssaal im Obergeschoß einer ehemaligen Scheune. Daneben sollen die Räume des eigentlichen Schlosses, welches sich ganz am Rande des Gesamtkomplexes befindet, für Repräsentationszwecke hergerichtet werden - dies ermöglicht eine weitere Nutzung insbesondere als Ort für Hochzeiten und sonstige familiäre Feierlichkeiten.
Bei diesem Projekt kam es zu einem Nebeneinander von historistischen und modernen (bzw. zeitlosen) Elementen, die sich schlußendlich - so jedenfalls die professorale Bewertung - zusammen mit dem Ursprungsbau zu einem sehr harmonischen Ganzen verbinden.
Der Bereich des eigentlichen Schlosses sowie die auf der Seeseite anschließenden Gebäudeteile sind dabei ganz im Geiste des Historismus gestaltet worden. Das Schloß besitzt wieder den Charme, welches es zu seinen Glanzzeiten besessen hat: Seidentapeten zieren die Wände, die Böden sind mit hochwertigem Parkett ausgelegt und es ist für eine erlesene Möblierung gesorgt. Auch der zwischen der als Seminartrakt genutzten einstigen Scheune und dem früheren Verwaltertrakt neu errichtete Bau folgt in seiner Gestaltung den Grundlinien des Bestandes, ist ebenfalls ganz dem Historismus verpflichtet.
Besagte Scheune hingegen, sowie die dem Schloßtrakt gegenüberliegenden ehemaligen Stallungen, sind äußerlich zwar weitgehend in ihren Urzustand zurückversetzt und restauriert, im Inneren jedoch sind sie - sofern nicht historische Bauteile konserviert und in die Gestaltung mit einbezogen wurden, modern ausgestattet. Damit wird auch optisch zum Ausdruck gebracht, daß es sich bei diesen Gebäudeteilen um Bereiche des "Arbeitens" handelt - ganz so, wie dies seit eh und je der Fall gewesen ist.
Wie schon die vorangehenden Projekte an der HCU-Hamburg bot auch dieses die Gelegenheit, die Fertigkeiten im Bereich der Visualisierung und des dreidimensionalen Modellierens weiter zu vertiefen. Wenn auch das Belichten und realitätsnahe Texturieren nicht gänzlich ausgereift sind, so war dieses Projekt auf diesem Wege eine wichtige und und lehrreiche Erfahrung. Die Planung insgesamt wurde - trotz der im Professorium der Universität Stuttgart sehr umstrittenen Formensprache und dem klaren Bekenntnis zum Historismus allgemein gelobt und nach der Präsentation mit der Bestnote bewertet.